미묘하지만 정교한 차이, 군더더기를 덜어내고 본질에 집중한 디자인 보이지 않는 삶을 보는 섬세함까지
그런 VIEW가 모여, 당신의 SK VIEW가 됩니다
정제된 혁신의 건축미학을 담아
시대가 바뀌어도 기억되는 집을 생각합니다.
SK VIEW는 공간을 넘어 선택을 설계합니다.
라이프스타일에 따라 변화하는
맞춤형 공간
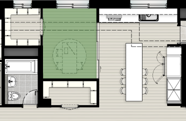
스마트 키즈룸
공부공간과 수면공간을 분리

패밀리 스터디룸
주방 옆 가족 모두가 쓰는 스터디룸

집 안 곳곳 가족 모두를 위한
효율적인 수납공간
복도/자녀방 팬트리
복도 뿐 아니라 방 안에도 수납공간 제공

현관창고
스키장비, 골프장비, 자전거 등 편리한 수납공간

복잡한 조리 공간을 깔끔하게 숨기고,
수납력까지 강화한 프리미엄 키친
히든 키친
넓고 쾌적한 다이닝 공간을 위해 도어로 공간을 구분

여유로운 공간과 품격을 더한
쇼룸 같은 다이닝 공간
독립형 다이닝 라운지
별도의 다이닝 공간을 만드는 주방 레이아웃

대면형 주방
가족간 대화하며 요리가능한 대면형 주방 레이아웃

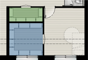
더 넓어진 마스터룸으로
여유롭고 편안한 생활
와이드 마스터룸
싱글침대 2개가 설치가능한 넓은 마스터룸

와이드 베드룸
Walk In Closet 수납계획이 추가된 자녀방

실내에서 자연을 누릴 수 있는
실용적인 인도어 테라스
인도어 테라스
실내에서 식물을 키울 수 있는 내부테라스

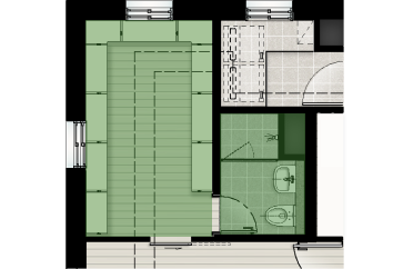
채광이 가능한 대형 드레스룸 공간과
프리미엄 수납 시스템
기본 대형 드레스룸
많은 수납이 가능한 대형 드레스룸

대형 드레스룸 + 슬라이딩 도어
드레스룸과 화장대, 화잘실을 하나로!

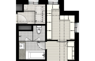
호텔식 분리형 4pcs 욕실과
편리함을 극대화한 카운터형 세면대
카운터형 세면대
카운터형 세면대로 호텔식 구성

4pcs
욕조, 샤워, 양변기, 세면대 4개 구성으로 격이 다른 욕실

MULTI USE SPACE
ALL IN STORAGE
HIDDEN KITCHEN
PREMIUM DINING
GRAND BEDROOM
INDOOR TERRACE
BOUTIQUE DRESSROOM
LUXURY BATH & POWDER